Trilocale in vendita

Giussago, Via Benedetto Croce
€ 170.000
85 Mq 85 Mq
1 bagno 1 bagno

Trilocale in vendita

Giussago, Via Benedetto Croce

Descrizione annuncio

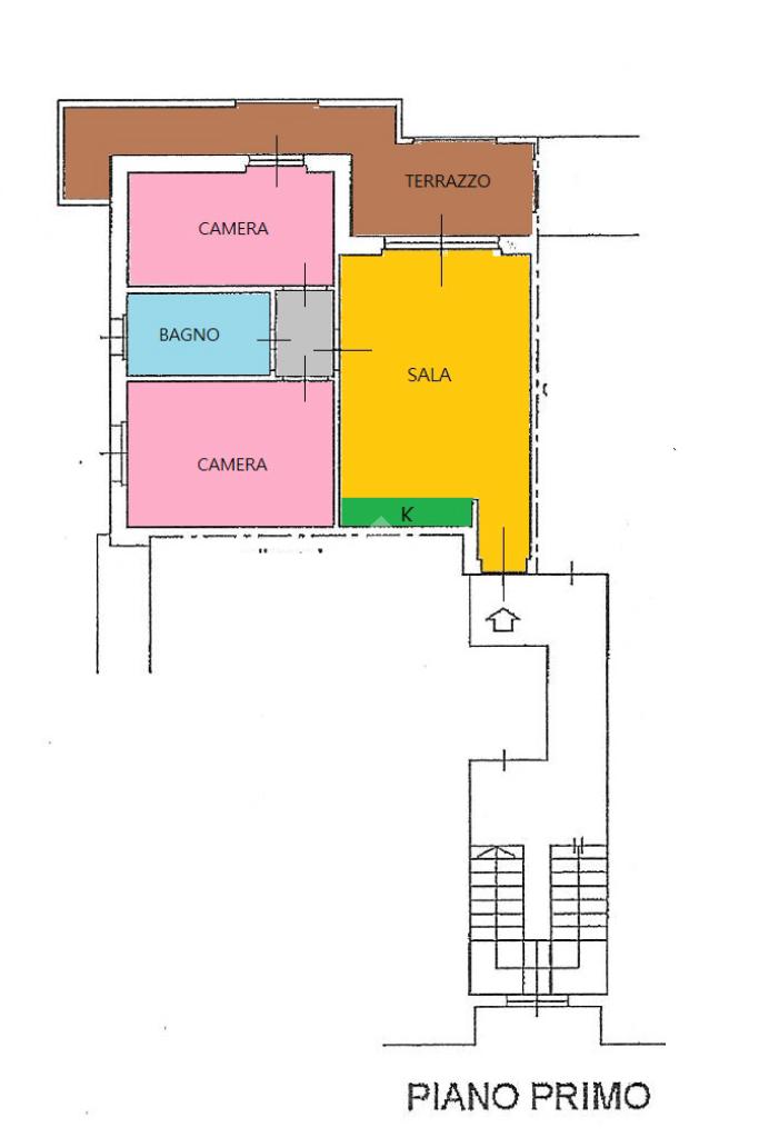
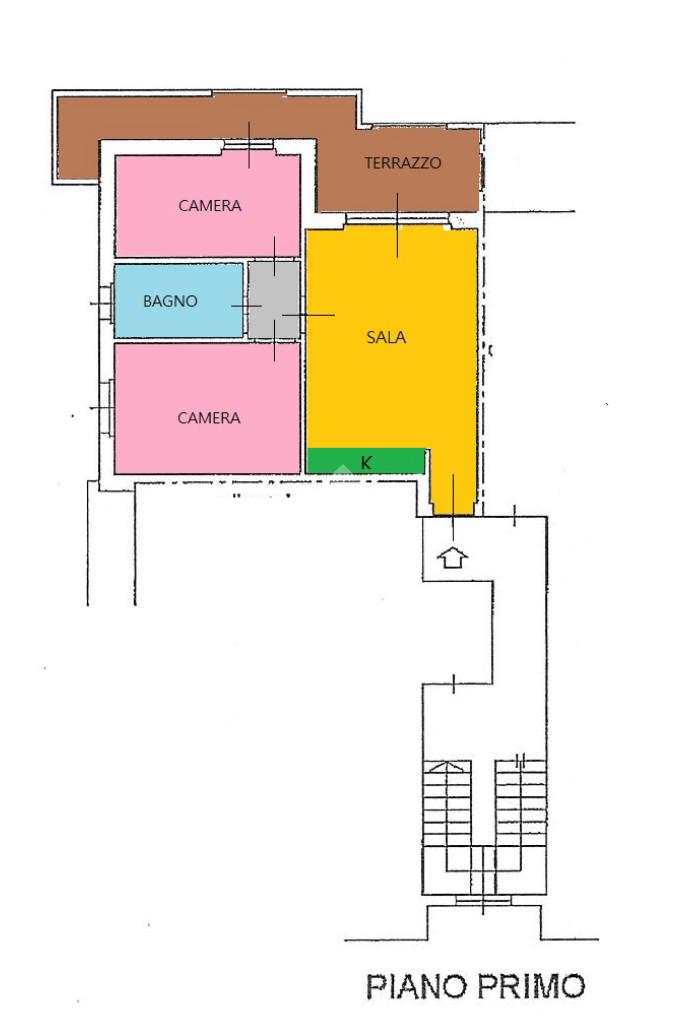
GIUSSAGO: In prossimità del plesso scolastico, all'interno di un complesso residenziale composto da quattro piccole palazzine, proponiamo in vendita soluzione posta al primo piano con ascensore. L'appartamento dalle ottime finiture è composto da ingresso, sala con angolo cottura e accesso all'terrazzo, disimpegno, camera matrimoniale, bagno e cameretta. Con cantina al piano terra dello stabile. Libero al rogito.

Mostra tutto

Nelle vicinanze

Trasporto pubblico Trasporto pubblico
Trasporto pubblico
2,3 Km
Scuole Scuole
Scuole
2,2 Km
Ristoranti Ristoranti
Agriturismo Cascina Fiamberta
2,0 Km
La Vecchia Stalla
2,7 Km
Trattoria del Sole
2,7 Km
Mostra tutto

Caratteristiche

Rif.:
61124302
Piano:
1 di 4 con ascensore (Piano basso)
Terrazzi:
1
Camere da letto:
2
Arredamento:
Assente
Condizionamento:
Autonomo
Mostra tutto
Prezzo Prezzo
€ 170.000
Rata mutuo Rata mutuo
€ 802 / mese
Spese annue Spese annue
€ 1.900
Proponi il tuo prezzoProponi il tuo prezzo
Immobile valutato con T·Valuta

Classe Energetica

B
B
B
B
B
B
B
B
B
EP globale non rinnovabile:
113.92 kW h/m² anno
EP globale rinnovabile:
36.02 kW h/m² anno
EP invernale del fabbricato:
EP estiva del fabbricato:
Anno di costruzione:
2014
Riscaldamento:
Autonomo
Tipo impianto:
A pavimento
Tipo alimentazione:
Metano

Ti interessa visionare l'immobile?

Fissa un appuntamento  Fissa un appuntamento

Richiedi informazioni

Clicca su Leggi per aprire l'informativa
* Questi campi sono obbligatori

Calcola il tuo mutuo

Semplice e senza impegno
Anticipo

( % )
Mutuo

( % )

pochi semplici passi

inserisci i tuoi dati
Questionario completato
Grazie per aver richiesto un appuntamento senza impegno con un nostro Consulente del Credito e Assicurativo.

Hai inserito correttamente tutti i dati necessari e a breve riceverai una e-mail con un link da convalidare per inviare i tuoi dati.
Affiliato
Studio Lacchiarella Sas
P.zza Risorgimento, 21 20084 Lacchiarella (MI)

Il nostro staff


  • Elisabetta Maccazzola
    Affiliata

  • Matteo Giambattista
    Affiliato
P.zza Risorgimento, 21 20084 Lacchiarella (MI)
Zona: Lacchiarella-Giussago
Mostra su mappa
Orari: Lun. - Ven. 9.00-12.30 / 14.30-20.00 Sab. 9.00-12.30 / 14.30-18.00
Affiliato
Studio Lacchiarella Sas
P.zza Risorgimento, 21 20084 Lacchiarella (MI)

2025 Tecnocasa Franchising S.p.A. - P. IVA 08365160152 - Via Monte Bianco 60/A 20089 Rozzano (MI). Ogni agenzia ha un proprio titolare ed è autonoma. Privacy policy | Policy utilizzo | Cookie policy